Rigter NVM Makelaars gebruikt cookies om de website naar behoren te laten werken, om functies voor social media te bieden en om onze website te analyseren. Op onze website kun je ons Cookieverklaring en Privacybeleid vinden.

Celebesstraat 43, Baarn

Omschrijving

Uniek gelegen nabij het Baarnse Bos, aan een fraaie en authentieke laan, staat deze in jaren ’30-stijl uitgebouwde en gemoderniseerde riante middenwoning. De woning heeft een woonoppervlakte van 136 m², beschikt over een riante berging (voormalige garage) en is gelegen op een perceel van 176 m². De woning is volledig instapklaar en combineert het karakter van de jaren ’30 met een hoog niveau van comfort, afwerking en duurzaamheid.

De woning is door de jaren heen met veel zorg en respect voor de oorspronkelijke architectuur gerenoveerd en verduurzaamd. Authentieke elementen zoals glas-in-loodramen, paneeldeuren, overstekken en hoge plafonds zijn behouden gebleven. Tegelijkertijd is de woning voorzien van moderne installaties, goede isolatie en comfortabele voorzieningen, wat resulteert in energielabel B.

I N D E L I N G
Overdekte entree, hal met toegang tot de kelder, toilet met fonteintje, provisiekast en glas-in-lood beglazing. Zeer lichte woon-/eetkamer met erker aan de voorzijde, openslaande deuren naar de achtertuin en sfeervolle open haard. Riante moderne keuken in de uitbouw, voorzien van vloerverwarming, lichtstraat, complete inbouwapparatuur en een deur naar de tuin.

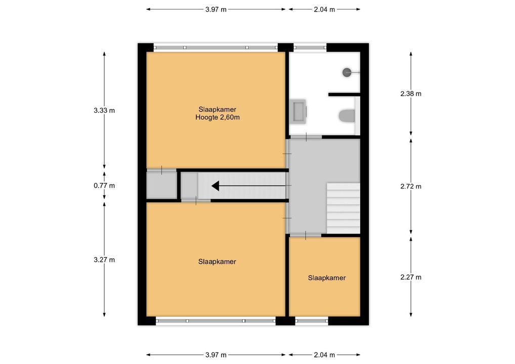
1 E V E R D I E P I N G
Overloop, ruime slaapkamer aan de achterzijde met vaste kast, ruime 2e slaapkamer aan de voorzijde met vaste kast, 3e slaapkamer aan de voorzijde. Badkamer voorzien van inloopdouche, 2e toilet, wastafelmeubel en vloerverwarming. Tevens is deze verdieping uitgerust met airconditioning.

Z O L D E R V E R D I E P I N G
Vaste trap naar een zeer ruime en lichte zolderverdieping. Dankzij de royale dakkapellen aan zowel de voor- als achterzijde over de volledige breedte en twee Velux dakramen is dit een volwaardige woonlaag met een 4e slaapkamer en de mogelijkheid om een 5e slaapkamer te realiseren. Voorzien van veel bergruimte door vaste kastenwand en een 2e badkamer met wastafelmeubel, ligbad met douche, 3e toilet en opstelling voor wasmachine en droger. Tevens is ook deze verdieping uitgerust met airconditioning.

B U I T E N R U I M T E
De achtertuin is verzorgd aangelegd en beschikt over meerdere zonnige terrassen. Achterin de tuin bevindt zich een riante berging (voormalige garage), voorzien van buitenkeuken, water en elektra. De tuin heeft een uitgang aan de Wijkamplaan, waar eenvoudig een inrit voor de auto gerealiseerd kan worden.

K E N M E R K E N
- bouwjaar 1932
- woonoppervlakte circa 136 m²
- perceeloppervlakte 176 m²
- energielabel B
- volledig gemoderniseerd en verduurzaamd, instapklaar
- HR++ beglazing, spouw-, vloer- en dakisolatie
- keuken en beide badkamers vernieuwd, voorzien van vloerverwarming
- Intergas Kombi Kompact HRE cv-ketel (2017)
- airconditioning op 1e en 2e verdieping
- riante berging (voormalige garage) met water en elektra
- verzorgde tuin met buitenkeuken, meerdere terrassen en uitgang aan de Wijkamplaan

Een bijzondere en complete jaren ’30-woning op een toplocatie nabij het Baarnse Bos, met een hoog afwerkingsniveau, uitstekende duurzaamheid en verrassend veel ruimte.

Kenmerken

Kenmerken

Prijs
€ 795.000 k.k.
Status
Beschikbaar
Oplevering
In overleg

Bouw

Soort woonhuis
Eengezinswoning, Tussenwoning
Soort bouw
Bestaande bouw
Bouwjaar
1932
Onderhoud binnen
Uitstekend
Onderhoud buiten
Uitstekend

Oppervlakten en inhoud

Woonoppervlakte
136m²
Perceeloppervlakte
176m²
Inhoud
494m³

Indeling

Aantal kamers
5
Aantal slaapkamers
4
Aantal badkamers
2
Aantal verdiepingen
4
Voorzieningen
Airconditioning, Dakraam, Glasvezel kabel, Mechanische ventilatie, Rookkanaal

Energie

Energielabel
B
Isolatie
Volledig geisoleerd
Warm water
C.V.-ketel
Verwarming
C.V.-ketel, Open haard, Vloerverwarming gedeeltelijk
Ketel
Intergas Kombi Kompact HRE (2017, Combi-ketel, Eigendom)

Buitenruimte

Ligging
Aan rustige weg, In bosrijke omgeving
Tuin
Achtertuin, Voortuin
Achtertuin
Zuidoost, 75m², 750×1400cm
Schuur
Vrijstaand steen
Faciliteiten schuur
Voorzien van elektra, Voorzien van water

Garage

Plattegronden

Locatie

[ { "address": "Celebesstraat 43", "zipCode": "3742 DC", "city": "Baarn", "lat": 52.2034486, "lng": 5.2913191, "heading": 0, "pitch": 0 } ]
[{"featureType":"water","elementType":"geometry.fill","stylers":[{"color":"#d3d3d3"}]},{"featureType":"transit","stylers":[{"color":"#808080"},{"visibility":"off"}]},{"featureType":"road.highway","elementType":"geometry.stroke","stylers":[{"visibility":"on"},{"color":"#b3b3b3"}]},{"featureType":"road.highway","elementType":"geometry.fill","stylers":[{"color":"#ffffff"}]},{"featureType":"road.local","elementType":"geometry.fill","stylers":[{"visibility":"on"},{"color":"#ffffff"},{"weight":1.8}]},{"featureType":"road.local","elementType":"geometry.stroke","stylers":[{"color":"#d7d7d7"}]},{"featureType":"poi","elementType":"geometry.fill","stylers":[{"visibility":"on"},{"color":"#ebebeb"}]},{"featureType":"administrative","elementType":"geometry","stylers":[{"color":"#a7a7a7"}]},{"featureType":"road.arterial","elementType":"geometry.fill","stylers":[{"color":"#ffffff"}]},{"featureType":"road.arterial","elementType":"geometry.fill","stylers":[{"color":"#ffffff"}]},{"featureType":"landscape","elementType":"geometry.fill","stylers":[{"visibility":"on"},{"color":"#efefef"}]},{"featureType":"road","elementType":"labels.text.fill","stylers":[{"color":"#696969"}]},{"featureType":"administrative","elementType":"labels.text.fill","stylers":[{"visibility":"on"},{"color":"#737373"}]},{"featureType":"poi","elementType":"labels.icon","stylers":[{"visibility":"off"}]},{"featureType":"poi","elementType":"labels","stylers":[{"visibility":"off"}]},{"featureType":"road.arterial","elementType":"geometry.stroke","stylers":[{"color":"#d6d6d6"}]},{"featureType":"road","elementType":"labels.icon","stylers":[{"visibility":"off"}]},{},{"featureType":"poi","elementType":"geometry.fill","stylers":[{"color":"#dadada"}]}]

Maak een afspraak voor een bezichtiging

Vul het onderstaande formulier in en we nemen zo snel mogelijk contact met u op.

Uw bericht is naar ons verzonden. Wij nemen zo snel mogelijk contact met u op.

Er is iets mis gegaan met het versturen van het formulier.
Controleer of u alle velden (goed) heeft ingevoerd en probeer het nog een keer.

Wilt u een bezichtiging plannen?

recaptcha
reCAPTCHA
PrivacyTerms

Vergelijkbare woningen

Verkocht
Eemnesserweg 57 A 3743AE Baarn 160m²   4 slaapkamers € 672.500 v.o.n.
Verkocht
Eemnesserweg 57 B 3743AE Baarn 160m²   4 slaapkamers € 672.500 v.o.n.
Verkocht
Eemnesserweg 57 E 3743Ae Baarn 180m²   4 slaapkamers € 692.500 v.o.n.