Rigter NVM Makelaars gebruikt cookies om de website naar behoren te laten werken, om functies voor social media te bieden en om onze website te analyseren. Op onze website kun je ons Cookieverklaring en Privacybeleid vinden.

Dotterbloemlaan 35, Baarn

Omschrijving

Gelegen aan een rustige, groene laan met vrij uitzicht over een brede groenstrook de Hyacintstraat in, ligt deze ruime middenwoning met diepe achtertuin. De woning is goed en professioneel onderhouden door de woningcorporatie. Voorzien van HR++ beglazing met ventilatieroosters, nieuwe buitendeuren van hoge kwaliteit, dak-, vloer-, en gevelpaneelisolatie en zonneschermen aan de achterzijde op zowel de begane grond als de 1e verdieping. De achtertuin is verrassend groot, met een houten berging, een stenen berging met mogelijkheid voor het realiseren van een kantoor of praktijkruimte, en een achterom.

De ligging is ideaal: nabij de weilanden aan de rivier de Eem en de Praamgracht, en op korte fiets- of loopafstand van het gezellige dorpscentrum van Baarn. Binnen enkele minuten fietsen bereikt u Soest en binnen circa 25 minuten het centrum van Amersfoort. In de directe omgeving is voldoende parkeergelegenheid aanwezig.

Deze woning wordt tot 22 december 2025 uitsluitend verkocht aan een voor Stichting Omthuis aanvaardbare kandidaat. Deze kandidaat dient aantoonbaar huurder van Stichting Omthuis Baarn en/of Leusden te zijn. Verkoop geschiedt onder voorbehoud gunning Omthuis.

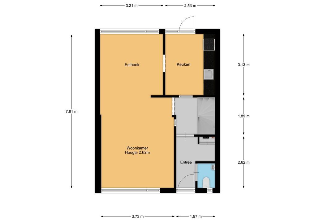
I N D E L I N G
Entree, hal met garderobenis, vernieuwde meterkast en toilet met fonteintje. Ruime woon-/eetkamer met veel lichtinval en keuken voorzien van 4-pits gasfornuis met oven (ATAG) en Bosch afzuigkap. Vanuit de keuken is toegang tot de achtertuin.

1 E V E R D I E P I N G
Overloop met vaste kast. Slaapkamer aan de voorzijde met vaste kasten, 2e slaapkamer aan de achterzijde met vaste kast en 3e slaapkamer met aansluitingen voor wastafel. Badkamer met douche, toilet en wastafelmeubel.

Z O L D E R V E R D I E P I N G
Vaste trap naar de zolderverdieping met 4e slaapkamer voorzien van Velux dakraam, wasruimte, opbergruimte, cv-opstelling en mechanische ventilatie.

K E N M E R K E N
– bouwjaar 1974
– woonoppervlakte 114 m²
– perceeloppervlakte ca. 145 m² (wordt nog uitgemeten)
– energielabel B
– voorzien van HR++ beglazing met ventilatieroosters
– dak-, vloer-, en gevelpaneelisolatie en nieuwe buitendeuren
– zonneschermen aan de achterzijde (begane grond en 1e verdieping)
– houten berging en stenen berging met mogelijkheid voor kantoor of praktijkruimte
– 4 slaapkamers
– diepe, zonnige achtertuin met achterom
– gunstige ligging nabij weilanden, rivier de Eem, centrum van Baarn en voorzieningen

Kenmerken

Kenmerken

Prijs
€ 475.000 k.k.
Status
Verkocht
Oplevering
In overleg

Bouw

Soort woonhuis
Eengezinswoning, Tussenwoning
Soort bouw
Bestaande bouw
Bouwjaar
1974
Onderhoud binnen
Redelijk
Onderhoud buiten
Goed

Oppervlakten en inhoud

Woonoppervlakte
114m²
Perceeloppervlakte
145m²
Inhoud
390m³

Indeling

Aantal kamers
5
Aantal slaapkamers
4
Aantal badkamers
1
Aantal verdiepingen
3
Voorzieningen
Buitenzonwering, Dakraam, Glasvezel kabel, Mechanische ventilatie

Energie

Energielabel
B
Isolatie
Dakisolatie, Vloerisolatie
Warm water
C.V.-ketel
Verwarming
C.V.-ketel
Ketel
Remeha (2007, Combi-ketel, Eigendom)

Buitenruimte

Ligging
Aan rustige weg, In bosrijke omgeving, In woonwijk, Vrij uitzicht
Tuin
Achtertuin, Voortuin
Achtertuin
Zuidoost, 144m², 600×2400cm
Schuur
Vrijstaand steen
Faciliteiten schuur
Voorzien van elektra

Garage

Plattegronden

Locatie

[ { "address": "Dotterbloemlaan 35", "zipCode": "3742 ED", "city": "Baarn", "lat": 52.2021411, "lng": 5.3005558, "heading": 0, "pitch": 0 } ]
[{"featureType":"water","elementType":"geometry.fill","stylers":[{"color":"#d3d3d3"}]},{"featureType":"transit","stylers":[{"color":"#808080"},{"visibility":"off"}]},{"featureType":"road.highway","elementType":"geometry.stroke","stylers":[{"visibility":"on"},{"color":"#b3b3b3"}]},{"featureType":"road.highway","elementType":"geometry.fill","stylers":[{"color":"#ffffff"}]},{"featureType":"road.local","elementType":"geometry.fill","stylers":[{"visibility":"on"},{"color":"#ffffff"},{"weight":1.8}]},{"featureType":"road.local","elementType":"geometry.stroke","stylers":[{"color":"#d7d7d7"}]},{"featureType":"poi","elementType":"geometry.fill","stylers":[{"visibility":"on"},{"color":"#ebebeb"}]},{"featureType":"administrative","elementType":"geometry","stylers":[{"color":"#a7a7a7"}]},{"featureType":"road.arterial","elementType":"geometry.fill","stylers":[{"color":"#ffffff"}]},{"featureType":"road.arterial","elementType":"geometry.fill","stylers":[{"color":"#ffffff"}]},{"featureType":"landscape","elementType":"geometry.fill","stylers":[{"visibility":"on"},{"color":"#efefef"}]},{"featureType":"road","elementType":"labels.text.fill","stylers":[{"color":"#696969"}]},{"featureType":"administrative","elementType":"labels.text.fill","stylers":[{"visibility":"on"},{"color":"#737373"}]},{"featureType":"poi","elementType":"labels.icon","stylers":[{"visibility":"off"}]},{"featureType":"poi","elementType":"labels","stylers":[{"visibility":"off"}]},{"featureType":"road.arterial","elementType":"geometry.stroke","stylers":[{"color":"#d6d6d6"}]},{"featureType":"road","elementType":"labels.icon","stylers":[{"visibility":"off"}]},{},{"featureType":"poi","elementType":"geometry.fill","stylers":[{"color":"#dadada"}]}]

Maak een afspraak voor een bezichtiging

Vul het onderstaande formulier in en we nemen zo snel mogelijk contact met u op.

Uw bericht is naar ons verzonden. Wij nemen zo snel mogelijk contact met u op.

Er is iets mis gegaan met het versturen van het formulier.
Controleer of u alle velden (goed) heeft ingevoerd en probeer het nog een keer.

Wilt u een bezichtiging plannen?

recaptcha
reCAPTCHA
PrivacyTerms

Vergelijkbare woningen

Verkocht
Faas Eliaslaan 2 4 3742 AT Baarn 86m²   2 slaapkamers € 399.000 k.k.
Verkocht
Margrietstraat 4 3742 RC Baarn 112m²   3 slaapkamers € 437.500 k.k.
Verkocht
van Kinsbergenlaan 17 3742 PH Baarn 119m²   5 slaapkamers € 445.000 k.k.