Rigter NVM Makelaars gebruikt cookies om de website naar behoren te laten werken, om functies voor social media te bieden en om onze website te analyseren. Op onze website kun je ons Cookieverklaring en Privacybeleid vinden.

Hoofdstraat 38, Baarn

Omschrijving

Nabij het centrum gelegen, volledig gemoderniseerd 3-kamerappartement met balkon aan beide zijden, gelegen op de eerste woonlaag van een kleinschalig appartementencomplex. Het appartement beschikt over een verrassend grote multifunctionele berging/bijkeuken in het souterrain met wasmachineaansluiting. Daarnaast is er een gezamenlijke tuin en een aparte fietsenberging aanwezig. De actieve Vereniging van Eigenaren “Salatiga” draagt zorg voor het onderhoud van het complex.

Het appartement is volledig gemoderniseerd en voorzien van HR++ beglazing. Voor warmwater is er een eigen boiler aanwezig en verwarming en koeling vinden plaats via airco-units, wat zorgt voor comfortabel en flexibel wonen. De ligging is gunstig ten opzichte van het centrum, winkels, openbaar vervoer en overige voorzieningen.

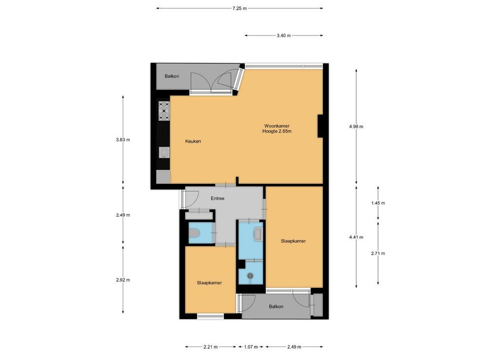
I N D E L I N G
Entree, hal met meterkast en toilet met fonteintje. Lichte woon-/eetkamer met open keuken, voorzien van diverse inbouwapparatuur en toegang tot het balkon. Ruime slaapkamer met mogelijkheid voor een kastenwand en eveneens toegang tot een balkon. 2e slaapkamer, geschikt als werk- of logeerkamer. Moderne badkamer met inloopdouche, wastafelmeubel en handdoekenradiator.

K E L D E R
Verassend grote multifunctionele ruimte van circa 19 m², bestaande uit twee afzonderlijke ruimtes en twee vaste kasten. Voorzien van wasmachineaansluiting, daglichttoetreding via een koekoek en de opstelling van de eigen boiler voor warmwater.

K E N M E R K E N
- energielabel C
- 3-kamerappartement
- woonoppervlakte 62 m²
- ruime kelderruimte circa 19 m²
- volledig gerenoveerd in 2016
- moderne keuken en badkamer
- eigen warmwatervoorziening
- verwarming en koeling via airco-units (2025)
- volledig voorzien van HR++ beglazing
- VvE-bijdrage € 185,-- per maand
- actieve Vereniging van Eigenaren
- gezamenlijke tuin en aparte fietsenberging

Een comfortabel en instapklaar appartement op een centrale locatie, met alle voorzieningen binnen handbereik.

Kenmerken

Kenmerken

Prijs
€ 349.000 k.k.
Status
Verkocht onder voorbehoud
Oplevering
In overleg

Bouw

Soort appartement
Portiekflat, Appartement
Woonlaag
1
Soort bouw
Bestaande bouw
Bouwjaar
1965
Onderhoud binnen
Goed
Onderhoud buiten
Goed

Oppervlakten en inhoud

Woonoppervlakte
62m²
Inhoud
205m³

Indeling

Aantal kamers
3
Aantal slaapkamers
2
Aantal badkamers
1
Aantal verdiepingen
1
Voorzieningen
Airconditioning, Glasvezel kabel, Natuurlijke ventilatie

Energie

Energielabel
C
Warm water
Gasboiler eigendom
Verwarming
Elektrische verwarming

Buitenruimte

Ligging
In centrum
Balkon
Ja
Schuur
Inpandig
Faciliteiten schuur
Voorzien van elektra, Voorzien van verwarming, Voorzien van water

Garage

Plattegronden

Locatie

[ { "address": "Hoofdstraat 38", "zipCode": "3741 AD", "city": "Baarn", "lat": 52.2126417, "lng": 5.2960938, "heading": 0, "pitch": 0 } ]
[{"featureType":"water","elementType":"geometry.fill","stylers":[{"color":"#d3d3d3"}]},{"featureType":"transit","stylers":[{"color":"#808080"},{"visibility":"off"}]},{"featureType":"road.highway","elementType":"geometry.stroke","stylers":[{"visibility":"on"},{"color":"#b3b3b3"}]},{"featureType":"road.highway","elementType":"geometry.fill","stylers":[{"color":"#ffffff"}]},{"featureType":"road.local","elementType":"geometry.fill","stylers":[{"visibility":"on"},{"color":"#ffffff"},{"weight":1.8}]},{"featureType":"road.local","elementType":"geometry.stroke","stylers":[{"color":"#d7d7d7"}]},{"featureType":"poi","elementType":"geometry.fill","stylers":[{"visibility":"on"},{"color":"#ebebeb"}]},{"featureType":"administrative","elementType":"geometry","stylers":[{"color":"#a7a7a7"}]},{"featureType":"road.arterial","elementType":"geometry.fill","stylers":[{"color":"#ffffff"}]},{"featureType":"road.arterial","elementType":"geometry.fill","stylers":[{"color":"#ffffff"}]},{"featureType":"landscape","elementType":"geometry.fill","stylers":[{"visibility":"on"},{"color":"#efefef"}]},{"featureType":"road","elementType":"labels.text.fill","stylers":[{"color":"#696969"}]},{"featureType":"administrative","elementType":"labels.text.fill","stylers":[{"visibility":"on"},{"color":"#737373"}]},{"featureType":"poi","elementType":"labels.icon","stylers":[{"visibility":"off"}]},{"featureType":"poi","elementType":"labels","stylers":[{"visibility":"off"}]},{"featureType":"road.arterial","elementType":"geometry.stroke","stylers":[{"color":"#d6d6d6"}]},{"featureType":"road","elementType":"labels.icon","stylers":[{"visibility":"off"}]},{},{"featureType":"poi","elementType":"geometry.fill","stylers":[{"color":"#dadada"}]}]

Maak een afspraak voor een bezichtiging

Vul het onderstaande formulier in en we nemen zo snel mogelijk contact met u op.

Uw bericht is naar ons verzonden. Wij nemen zo snel mogelijk contact met u op.

Er is iets mis gegaan met het versturen van het formulier.
Controleer of u alle velden (goed) heeft ingevoerd en probeer het nog een keer.

Wilt u een bezichtiging plannen?

recaptcha
reCAPTCHA
PrivacyTerms

Vergelijkbare woningen

Verkocht
Faas Eliaslaan 2 4 3742 AT Baarn 86m²   2 slaapkamers € 399.000 k.k.
Verkocht
de Aak 49 3742 GW Baarn 95m²   2 slaapkamers € 320.000 k.k.
Verkocht
Brinkendael 20 3743 EA Baarn 73m²   2 slaapkamers € 325.000 k.k.