Rigter NVM Makelaars gebruikt cookies om de website naar behoren te laten werken, om functies voor social media te bieden en om onze website te analyseren. Op onze website kun je ons Cookieverklaring en Privacybeleid vinden.

Sweelincklaan 21, Baarn

Omschrijving

Fraai gelegen aan de rand van Baarn, met een weids en vrij uitzicht over de bossen van Kasteel Groeneveld, bevindt zich dit ruime en lichte 3-kamerappartement op de tweede verdieping van een kleinschalig appartementencomplex met lift. Het appartement beschikt over twee overdekte terrassen, een eigen berging op de begane grond en biedt door de ligging op tweede verdieping optimale rust, privacy en een uitzonderlijk mooi uitzicht.

De ligging is bijzonder: direct tegenover de bossen en wandelroutes van Kasteel Groeneveld, met gezellige horeca en terrassen op loopafstand. Tegelijkertijd bevinden het dorpscentrum van Baarn, het NS-station en diverse voorzieningen zich op circa vijf minuten fietsafstand. Ook de uitvalswegen richting de A1 en A27 zijn uitstekend bereikbaar.

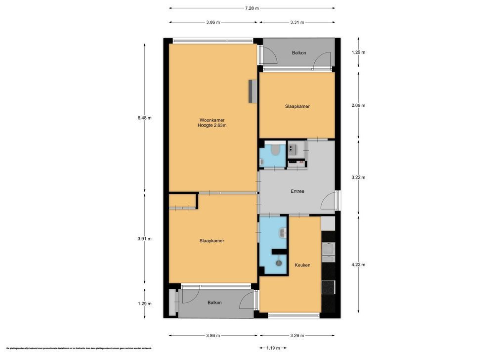
I N D E L I N G
Entree, ruime hal met meterkast, cv-kast en toilet met fonteintje. Royale en lichte woonkamer met grote raampartijen en fraai uitzicht over het groen, met toegang tot het overdekte terras aan de westzijde, voorzien van zonnescherm. Nette keuken met inbouwapparatuur, waaronder inductiekookplaat, oven en vaatwasser, apothekerskast en een kast met aansluiting voor wasmachine, met deur naar het overdekte terras aan de oostzijde. Hoofdslaapkamer aan de achterzijde met eveneens toegang tot het oostelijk gelegen terras, voorzien van buitenkast en zonnescherm. Tweede slaapkamer of werkkamer aan de voorzijde. Badkamer met vlakke inloopdouche, wastafelmeubel, hangende wandkast en designradiator.

B E R G I N G
Afsluitbare berging op de begane grond, bereikbaar vanuit de centrale entreehal.

G A R A G E
Er bestaat een mogelijkheid tot het bijkopen van een garage op de begane grond van het complex, voorzien van elektra en een op afstand bedienbare kanteldeur.

V v E
Actieve en gezonde Vereniging van Eigenaren. De servicekosten bedragen circa € 328,30 per maand.

K E N M E R K E N
- bouwjaar 1969
- woonoppervlak 76 m²
- gelegen op de 2e verdieping
- ruim en licht 3-kamerappartement
- twee overdekte terrassen op oost en west
- vrij en groen uitzicht over de bossen van Kasteel Groeneveld
- kleinschalig complex met lift en videofoon
- HR++ beglazing
- eigen cv-ketel
- mogelijkheid tot aankoop van een garage
- rustige ligging nabij natuur, centrum en NS-station
- zeer goede bereikbaarheid naar de A1 en A27

Een verzorgd en comfortabel appartement op een unieke locatie, waar natuur, rust en bereikbaarheid op een prettige manier samenkomen.

Kenmerken

Kenmerken

Prijs
€ 349.000 k.k.
Status
Verkocht onder voorbehoud
Oplevering
In overleg

Bouw

Soort appartement
Portiekflat, Appartement
Woonlaag
3
Soort bouw
Bestaande bouw
Bouwjaar
1969
Onderhoud binnen
Redelijk
Onderhoud buiten
Goed

Oppervlakten en inhoud

Woonoppervlakte
76m²
Inhoud
246m³

Indeling

Aantal kamers
3
Aantal slaapkamers
2
Aantal badkamers
1
Aantal verdiepingen
1
Voorzieningen
Buitenzonwering, Lift, Mechanische ventilatie

Energie

Energielabel
B
Warm water
C.V.-ketel
Verwarming
C.V.-ketel
Ketel
(Combi-ketel, Eigendom)

Buitenruimte

Ligging
Aan bosrand, In bosrijke omgeving, In woonwijk, Vrij uitzicht
Balkon
Ja

Garage

Soort garage
Garage mogelijk

Plattegronden

Locatie

[ { "address": "Sweelincklaan 21", "zipCode": "3741 HD", "city": "Baarn", "lat": 52.219495, "lng": 5.261622, "heading": 0, "pitch": 0 } ]
[{"featureType":"water","elementType":"geometry.fill","stylers":[{"color":"#d3d3d3"}]},{"featureType":"transit","stylers":[{"color":"#808080"},{"visibility":"off"}]},{"featureType":"road.highway","elementType":"geometry.stroke","stylers":[{"visibility":"on"},{"color":"#b3b3b3"}]},{"featureType":"road.highway","elementType":"geometry.fill","stylers":[{"color":"#ffffff"}]},{"featureType":"road.local","elementType":"geometry.fill","stylers":[{"visibility":"on"},{"color":"#ffffff"},{"weight":1.8}]},{"featureType":"road.local","elementType":"geometry.stroke","stylers":[{"color":"#d7d7d7"}]},{"featureType":"poi","elementType":"geometry.fill","stylers":[{"visibility":"on"},{"color":"#ebebeb"}]},{"featureType":"administrative","elementType":"geometry","stylers":[{"color":"#a7a7a7"}]},{"featureType":"road.arterial","elementType":"geometry.fill","stylers":[{"color":"#ffffff"}]},{"featureType":"road.arterial","elementType":"geometry.fill","stylers":[{"color":"#ffffff"}]},{"featureType":"landscape","elementType":"geometry.fill","stylers":[{"visibility":"on"},{"color":"#efefef"}]},{"featureType":"road","elementType":"labels.text.fill","stylers":[{"color":"#696969"}]},{"featureType":"administrative","elementType":"labels.text.fill","stylers":[{"visibility":"on"},{"color":"#737373"}]},{"featureType":"poi","elementType":"labels.icon","stylers":[{"visibility":"off"}]},{"featureType":"poi","elementType":"labels","stylers":[{"visibility":"off"}]},{"featureType":"road.arterial","elementType":"geometry.stroke","stylers":[{"color":"#d6d6d6"}]},{"featureType":"road","elementType":"labels.icon","stylers":[{"visibility":"off"}]},{},{"featureType":"poi","elementType":"geometry.fill","stylers":[{"color":"#dadada"}]}]

Maak een afspraak voor een bezichtiging

Vul het onderstaande formulier in en we nemen zo snel mogelijk contact met u op.

Uw bericht is naar ons verzonden. Wij nemen zo snel mogelijk contact met u op.

Er is iets mis gegaan met het versturen van het formulier.
Controleer of u alle velden (goed) heeft ingevoerd en probeer het nog een keer.

Wilt u een bezichtiging plannen?

recaptcha
reCAPTCHA
PrivacyTerms

Vergelijkbare woningen

Verkocht
Faas Eliaslaan 2 4 3742 AT Baarn 86m²   2 slaapkamers € 399.000 k.k.
Verkocht
de Aak 49 3742 GW Baarn 95m²   2 slaapkamers € 320.000 k.k.
Verkocht
Brinkendael 20 3743 EA Baarn 73m²   2 slaapkamers € 325.000 k.k.