Rigter NVM Makelaars gebruikt cookies om de website naar behoren te laten werken, om functies voor social media te bieden en om onze website te analyseren. Op onze website kun je ons Cookieverklaring en Privacybeleid vinden.

Zandvoortweg 16, Baarn

Omschrijving

Sfeervolle helft van dubbel woonhuis met diepe voortuin, schuur en tuin op centrale locatie in het dorp

In de dorpskern van Baarn, op een perceel van 332 m², bevindt zich deze karaktervolle helft van een dubbel woonhuis met een circa 20 meter diepe voortuin, aangebouwde schuur met overkapping en een beschutte achtertuin. De woning, gebouwd rond 1880, ademt sfeer dankzij de klassieke bouwstijl, hoge plafonds en authentieke indeling.

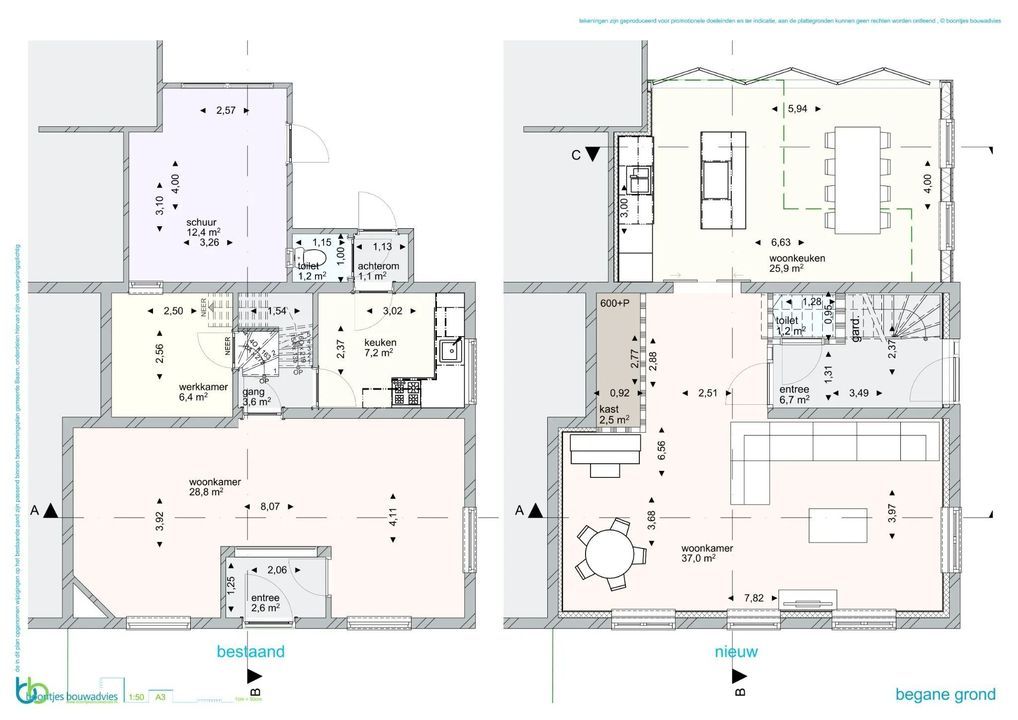
De woning vormt een solide basis om naar eigen wens te moderniseren en biedt daarbij aantrekkelijke uitbreidingsmogelijkheden. Het huidige woonoppervlak van circa 100 m² kan worden vergroot tot circa 140 m² door een uitbouw aan de achterzijde. De bijbehorende tekeningen en mogelijkheden conform bestemmingsplan zijn samengesteld door een architect en beschikbaar via Move; plattegronden zijn toegevoegd bij de afbeeldingen.

De ligging is ideaal: winkels, horeca, scholen, dorpsplein De Brink, NS-station, sportvelden en de Pekingtuin bevinden zich op loop- of fietsafstand. Ook de uitvalswegen richting A1 en A27 zijn uitstekend bereikbaar.

I N D E L I N G
Entree aan de voorzijde, hal met meterkast en garderobe. Lichte woonkamer met zitgedeelte, eethoek en sfeervolle gashaard. Vanuit de gang toegang tot de hobby-/werkkamer (ook geschikt als 4e slaapkamer) op splitlevel, de trapopgang en de keuken. De ruime keuken is voorzien van 4-pits gaskookplaat, spoelbak en aansluitingen voor de wasmachine. Vanuit de keuken toegang tot een stahoge, authentieke kelder met daglicht via koekoek. Aansluitend een bijkeuken met toilet en deur naar de tuin.

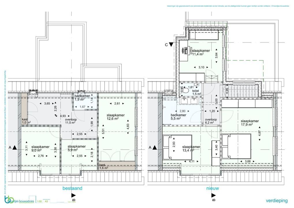
V E R D I E P I N G
Overloop met groot dakraam, vaste kastenwand en cv-opstelling. Badkamer met douche en dakraam. Ruime slaapkamer aan de zijkant, voorzien van vaste kasten. Tweede en derde slaapkamer, beide met dakkapel.

K E N M E R K E N
- perceeloppervlakte 332 m²
- woonoppervlak 100 m²
- diepe voortuin en beschutte achtertuin
- grote aangebouwde schuur en overkapping
- uitbreidingsmogelijkheden aan zowel voor- als achterzijde
- karakteristieke bouwstijl met hoge plafonds
- solide basis voor modernisering naar eigen wens
- gelegen op loopafstand van winkels, horeca, scholen, De Brink, NS-station en Pekingtuin

Een charmante woning op een geliefde locatie, met veel potentie en een sfeervolle uitstraling.

Kenmerken

Kenmerken

Prijs
€ 495.000 k.k.
Status
Verkocht onder voorbehoud
Oplevering
In overleg

Bouw

Soort woonhuis
Eengezinswoning, 2-onder-1-kapwoning
Soort bouw
Bestaande bouw
Bouwjaar
1880
Onderhoud binnen
Matig
Onderhoud buiten
Matig

Oppervlakten en inhoud

Woonoppervlakte
100m²
Perceeloppervlakte
332m²
Inhoud
347m³

Indeling

Aantal kamers
5
Aantal slaapkamers
4
Aantal badkamers
1
Aantal verdiepingen
3

Energie

Energielabel
F
Warm water
C.V.-ketel
Verwarming
C.V.-ketel
Ketel
(Eigendom)

Buitenruimte

Ligging
Aan rustige weg, In bosrijke omgeving, Open ligging
Tuin
Achtertuin, Tuin rondom, Voortuin, Zijtuin
Schuur
Aangebouwd steen
Faciliteiten schuur
Voorzien van elektra

Garage

Plattegronden

Locatie

[ { "address": "Zandvoortweg 16", "zipCode": "3741 BG", "city": "Baarn", "lat": 52.2149923, "lng": 5.2907337, "heading": 0, "pitch": 0 } ]
[{"featureType":"water","elementType":"geometry.fill","stylers":[{"color":"#d3d3d3"}]},{"featureType":"transit","stylers":[{"color":"#808080"},{"visibility":"off"}]},{"featureType":"road.highway","elementType":"geometry.stroke","stylers":[{"visibility":"on"},{"color":"#b3b3b3"}]},{"featureType":"road.highway","elementType":"geometry.fill","stylers":[{"color":"#ffffff"}]},{"featureType":"road.local","elementType":"geometry.fill","stylers":[{"visibility":"on"},{"color":"#ffffff"},{"weight":1.8}]},{"featureType":"road.local","elementType":"geometry.stroke","stylers":[{"color":"#d7d7d7"}]},{"featureType":"poi","elementType":"geometry.fill","stylers":[{"visibility":"on"},{"color":"#ebebeb"}]},{"featureType":"administrative","elementType":"geometry","stylers":[{"color":"#a7a7a7"}]},{"featureType":"road.arterial","elementType":"geometry.fill","stylers":[{"color":"#ffffff"}]},{"featureType":"road.arterial","elementType":"geometry.fill","stylers":[{"color":"#ffffff"}]},{"featureType":"landscape","elementType":"geometry.fill","stylers":[{"visibility":"on"},{"color":"#efefef"}]},{"featureType":"road","elementType":"labels.text.fill","stylers":[{"color":"#696969"}]},{"featureType":"administrative","elementType":"labels.text.fill","stylers":[{"visibility":"on"},{"color":"#737373"}]},{"featureType":"poi","elementType":"labels.icon","stylers":[{"visibility":"off"}]},{"featureType":"poi","elementType":"labels","stylers":[{"visibility":"off"}]},{"featureType":"road.arterial","elementType":"geometry.stroke","stylers":[{"color":"#d6d6d6"}]},{"featureType":"road","elementType":"labels.icon","stylers":[{"visibility":"off"}]},{},{"featureType":"poi","elementType":"geometry.fill","stylers":[{"color":"#dadada"}]}]

Maak een afspraak voor een bezichtiging

Vul het onderstaande formulier in en we nemen zo snel mogelijk contact met u op.

Uw bericht is naar ons verzonden. Wij nemen zo snel mogelijk contact met u op.

Er is iets mis gegaan met het versturen van het formulier.
Controleer of u alle velden (goed) heeft ingevoerd en probeer het nog een keer.

Wilt u een bezichtiging plannen?

recaptcha
reCAPTCHA
PrivacyTerms

Vergelijkbare woningen

Verkocht
Faas Eliaslaan 2 4 3742 AT Baarn 86m²   2 slaapkamers € 399.000 k.k.
Verkocht
Margrietstraat 4 3742 RC Baarn 112m²   3 slaapkamers € 437.500 k.k.
Verkocht
van Kinsbergenlaan 17 3742 PH Baarn 119m²   5 slaapkamers € 445.000 k.k.