Rigter NVM Makelaars gebruikt cookies om de website naar behoren te laten werken, om functies voor social media te bieden en om onze website te analyseren. Op onze website kun je ons Cookieverklaring en Privacybeleid vinden.

Rubenslaan 212, Soest

Omschrijving

Ruim 3-kamerappartement met berging en balkon op het zuidwesten

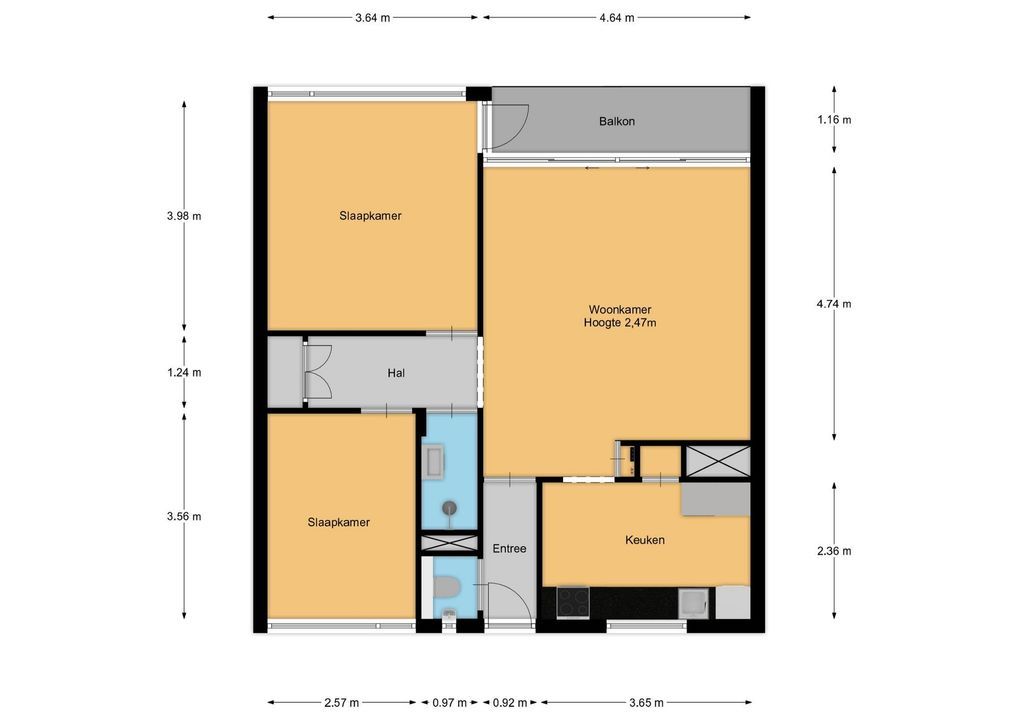
Aan de Rubenslaan is dit ruime en gemoderniseerde 3-kamerappartement gelegen, voorzien van twee slaapkamers, een lichte woonkamer met halfopen keuken, separaat toilet, badkamer en een balkon op het zuidwesten. Het appartement is centraal gelegen en bevindt zich op korte afstand van winkels, (sport)scholen, zwembad en openbaar vervoer. Een bushalte ligt op loopafstand en ook NS-station Soestdijk is nabij, met een goede verbinding richting onder andere Utrecht Centraal.

Daarnaast ligt de woning op loop- en fietsafstand van de bossen, het natuurgebied de Soester Duinen en het beschermde dorpsgezicht van de Soester Eng. De uitvalswegen richting de A1, A27 en A28 zijn goed bereikbaar.

I N D E L I N G
Entree, hal met toegang tot het separaat toilet (2018) met fonteintje. Lichte woonkamer met meterkast en grote schuifpui naar het balkon op het zuidwesten. Halfopen moderne keuken (2018) voorzien van diverse inbouwapparatuur, vloerverwarming en opstelling voor wasmachine en droger. Het gehele appartement is voorzien van een laminaatvloer (2018), met uitzondering van de badkamer, het toilet en de bijkeuken.

Via de tussenhal met inbouwkast toegang tot de twee slaapkamers en de badkamer. Slaapkamer aan de achterzijde met toegang tot het balkon en tweede slaapkamer aan de voorzijde. Badkamer (2018) voorzien van wastafelmeubel, inloopdouche en mechanische ventilatie.

K E N M E R K E N
- licht en modern 3-kamerappartement
- woonoppervlakte 70 m²
- energielabel F
- balkon circa 5 m² op het zuidwesten
- gehele appartement voorzien van laminaatvloer (2018)
- moderne keuken en badkamer vernieuwd in 2018
- vloerverwarming in de keuken
- huurboiler (Eneco)
- blokverwarming via de VvE
- berging op de begane grond circa 6 m²
- VvE-bijdrage € 267 per maand inclusief water
- erfpachtcanon € 157 per maand
- eigendom belast met recht van erfpacht, herzien in 2024 (volgende herziening pas in 2049)

Een prettig ingedeeld appartement op een centrale locatie, met zowel stedelijke voorzieningen als natuur binnen handbereik.

Kenmerken

Kenmerken

Prijs
€ 298.000 k.k.
Servicekosten
€ 267
Status
Beschikbaar
Oplevering
In overleg

Bouw

Soort appartement
Galerijflat, Appartement
Woonlaag
4
Soort bouw
Bestaande bouw
Bouwjaar
1964
Onderhoud binnen
Goed
Onderhoud buiten
Goed

Oppervlakten en inhoud

Woonoppervlakte
70m²
Inhoud
216m³

Indeling

Aantal kamers
3
Aantal slaapkamers
2
Aantal badkamers
1
Aantal verdiepingen
1
Voorzieningen
Buitenzonwering, Mechanische ventilatie, Schuifpui

Energie

Warm water
Elektrische boiler huur
Verwarming
Blokverwarming

Buitenruimte

Ligging
In bosrijke omgeving, In woonwijk, Vrij uitzicht
Balkon
Ja
Tuin
Zonneterras
Zonneterras
Zuidwest, 5m², 464×116cm
Schuur
Inpandig

Garage

Plattegronden

Locatie

[ { "address": "Rubenslaan 212", "zipCode": "3764 VM", "city": "Soest", "lat": 52.1770356, "lng": 5.3011956, "heading": 0, "pitch": 0 } ]
[{"featureType":"water","elementType":"geometry.fill","stylers":[{"color":"#d3d3d3"}]},{"featureType":"transit","stylers":[{"color":"#808080"},{"visibility":"off"}]},{"featureType":"road.highway","elementType":"geometry.stroke","stylers":[{"visibility":"on"},{"color":"#b3b3b3"}]},{"featureType":"road.highway","elementType":"geometry.fill","stylers":[{"color":"#ffffff"}]},{"featureType":"road.local","elementType":"geometry.fill","stylers":[{"visibility":"on"},{"color":"#ffffff"},{"weight":1.8}]},{"featureType":"road.local","elementType":"geometry.stroke","stylers":[{"color":"#d7d7d7"}]},{"featureType":"poi","elementType":"geometry.fill","stylers":[{"visibility":"on"},{"color":"#ebebeb"}]},{"featureType":"administrative","elementType":"geometry","stylers":[{"color":"#a7a7a7"}]},{"featureType":"road.arterial","elementType":"geometry.fill","stylers":[{"color":"#ffffff"}]},{"featureType":"road.arterial","elementType":"geometry.fill","stylers":[{"color":"#ffffff"}]},{"featureType":"landscape","elementType":"geometry.fill","stylers":[{"visibility":"on"},{"color":"#efefef"}]},{"featureType":"road","elementType":"labels.text.fill","stylers":[{"color":"#696969"}]},{"featureType":"administrative","elementType":"labels.text.fill","stylers":[{"visibility":"on"},{"color":"#737373"}]},{"featureType":"poi","elementType":"labels.icon","stylers":[{"visibility":"off"}]},{"featureType":"poi","elementType":"labels","stylers":[{"visibility":"off"}]},{"featureType":"road.arterial","elementType":"geometry.stroke","stylers":[{"color":"#d6d6d6"}]},{"featureType":"road","elementType":"labels.icon","stylers":[{"visibility":"off"}]},{},{"featureType":"poi","elementType":"geometry.fill","stylers":[{"color":"#dadada"}]}]

Maak een afspraak voor een bezichtiging

Vul het onderstaande formulier in en we nemen zo snel mogelijk contact met u op.

Uw bericht is naar ons verzonden. Wij nemen zo snel mogelijk contact met u op.

Er is iets mis gegaan met het versturen van het formulier.
Controleer of u alle velden (goed) heeft ingevoerd en probeer het nog een keer.

Wilt u een bezichtiging plannen?

recaptcha
reCAPTCHA
PrivacyTerms