Rigter NVM Makelaars gebruikt cookies om de website naar behoren te laten werken, om functies voor social media te bieden en om onze website te analyseren. Op onze website kun je ons Cookieverklaring en Privacybeleid vinden.

Nassaulaan 53, Baarn

Omschrijving

Hoog Baarn, 1.160 m² eigen grond, 338 m² woonoppervlak, energielabel A!, bouwjaar 1985

Deze bijzondere villa is buitengewoon geschikt voor een gezin dat een veilige, zonnige, ruime en makkelijk naar eigen woonwensen aan te passen woning zoekt, die ook nog (zie de plattegrond) levensloop bestendig is. Locatie, woonoppervlak, perceeloppervlak en energielabel zijn alle bovengemiddeld! Tegelijkertijd zijn het ontwerp en de uitvoering van deze villa niet alleen zeer onderscheidend maar ook eigenzinnig. Dit maakt dat u bij binnenkomst direct verrast wordt door de royale lichtinval, de speelse indeling en het optimale contact met de tuin op het zuiden. Een genoegen om te wonen voor eenieder die op zoek is naar een modern huis met veel ruimte en veel licht.

Deze villa is gelegen op een van de meest geliefde locaties in Hoog Baarn: modern, vrijstaand met een ruim multifunctioneel souterrain, 338 m² woonoppervlak op 1.160 m² eigen grond met een ruim 35 meter diepe, heerlijk vrije achtertuin op het zuiden. De architect heeft de villa ook echt ontworpen op de zon, rijk voorzien van grote ramen aan de achterzijde, meer besloten aan de voorzijde. De zeer royale woonkamer van ruim 60 m² biedt weids zicht op en direct toegang tot de vrije achtertuin. Alle kamers hebben ramen op de tuin dus zijn op het zuiden gericht. De verschillende, deels open, ruimtes in de villa verrassen bij binnenkomst door het vele binnenvallende licht en zijn multifunctioneel te gebruiken.

E N E R G I E L A B E L . A
Aan de woning is energielabel A toegekend, geldend tot 12 december 2033. De woning is voorzien van spouwisolatie, dakisolatie en dubbele beglazing. Voorts is in 2020 de begane-grond-vloer geïsoleerd (TONSON). In 2020 zijn 14 zonnepanelen geplaatst.

I N D E L I N G

S O U T E R R A I N
Souterrain -1, met circa 25 m² vloeroppervlak. Buiten-entree aan voorzijde en binnendoor via trap bereikbaar: hal. toilet, werk-/praktijkruimte, te gebruiken als extra slaap-/werkkamer. Plafondhoogte 2.46 m en met optimale daglichttoetreding!

Souterrain-2, met circa 70 m² vloeroppervlak bestaande uit 2 ruimtes. Bereikbaar vanuit de centrale hal en buitenom via een buitentrap vanuit de tuin. 2 Multifunctionele ruimtes waarvan de grootste met opstelling cv-ketel en aansluiting wasmachine/droger. Plafondhoogte 2.3 m, dus ook bij uitstek geschikt voor hobby, fitness en zo meer.

B E G A N E . G R O N D
Overdekte entree, vestibule, m.k., centrale hal met trappenhuis en vide, toilet v.v. wandcloset en fontein, zeer ruime woonkamer met schuifpui naar terras, halfopen keuken v.v. inbouwapparatuur, bijkeuken met buitendeur naar oprit waar 2 auto’s ruim kunnen parkeren op eigen terrein en deur naar vestibule. Werkkamer (eventueel slaapkamer) met ronde raampartij met zicht op de tuin en binnentrap naar souterrain-1. De centrale hal biedt tevens toegang naar een grote slaapkamer met vaste kastenwand en eigen badkamer v.v. ligbad, dubbel wastafelmeubel, douche en 2e toilet.

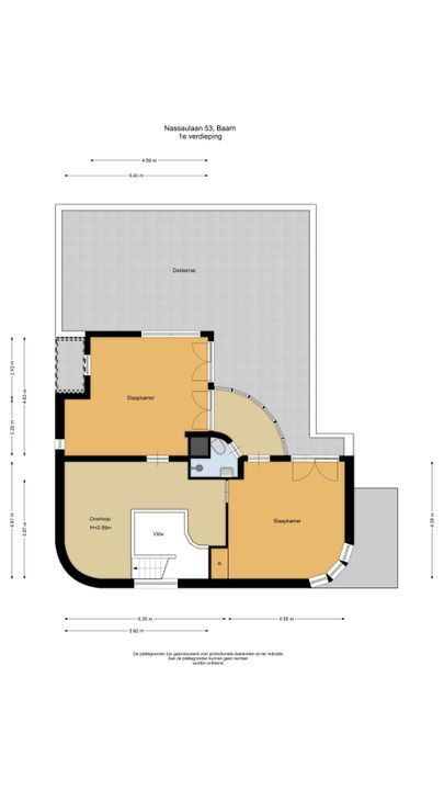
1 E . V E R D I E P I N G
Royale overloop met vide en ruimte voor hobby of werkplek. Royale 3e slaapkamer met vaste kasten, openslaande deuren met zicht op achtertuin en toegang tot dakterras van 59 m² op het zuiden. Grote 4e slaapkamer met vaste kast, eveneens op de tuin gericht en met een ruime toegang tot het dakterras. Beide slaapkamers hebben toegang tot de badkamer met toilet, wastafel en douche bereikbaar via een zonnige overloop met rondgebogen raampartij die door zijn bijzondere architectuur zorgt voor een vrolijke start van de dag.

K E N M E R K E N
- toplocatie Hoog Baarn
- 1.160 m² eigen grond
- heerlijke tuin met optimale bezonning en privacy
- 338 m² woonruimte conform meetrapport
- zeer royale woonkamer van ruim 60 m²
- 4 (slaap)kamers, 2 badkamers
- mogelijkheid kantoor/praktijk/studio/atelier aan huis
- dakterras 59 m²
- berging 6 m²
- energielabel A
- bouwjaar 1985
- onderhoudsvriendelijk door goede materiaalkeuzes

Kenmerken

Kenmerken

Prijs
€ 1.595.000 k.k.
Status
Beschikbaar
Oplevering
In overleg

Bouw

Soort woonhuis
Villa, Vrijstaande woning
Soort bouw
Bestaande bouw
Bouwjaar
1985
Onderhoud binnen
Goed
Onderhoud buiten
Goed

Oppervlakten en inhoud

Woonoppervlakte
338m²
Perceeloppervlakte
1.160m²
Inhoud
1.205m³

Indeling

Aantal kamers
8
Aantal slaapkamers
5
Aantal badkamers
2
Aantal verdiepingen
3
Voorzieningen
Buitenzonwering, Dakraam, Glasvezel kabel, Rookkanaal, Schuifpui, TV-Kabel, Zonnepanelen

Energie

Energielabel
A
Isolatie
Dakisolatie, Dubbel glas, Muurisolatie, Vloerisolatie, Volledig geisoleerd
Warm water
C.V.-ketel
Verwarming
C.V.-ketel
Ketel
Nefit Topline (2009, Combi-ketel, Eigendom)

Buitenruimte

Ligging
Aan rustige weg, Beschutte ligging, In bosrijke omgeving
Tuin
Achtertuin, Tuin rondom, Voortuin, Zijtuin
Schuur
Vrijstaand hout

Garage

Plattegronden

Locatie

[ { "address": "Nassaulaan 53", "zipCode": "3743 CB", "city": "Baarn", "lat": 52.2119673, "lng": 5.2772005, "heading": 0, "pitch": 0 } ]
[{"featureType":"water","elementType":"geometry.fill","stylers":[{"color":"#d3d3d3"}]},{"featureType":"transit","stylers":[{"color":"#808080"},{"visibility":"off"}]},{"featureType":"road.highway","elementType":"geometry.stroke","stylers":[{"visibility":"on"},{"color":"#b3b3b3"}]},{"featureType":"road.highway","elementType":"geometry.fill","stylers":[{"color":"#ffffff"}]},{"featureType":"road.local","elementType":"geometry.fill","stylers":[{"visibility":"on"},{"color":"#ffffff"},{"weight":1.8}]},{"featureType":"road.local","elementType":"geometry.stroke","stylers":[{"color":"#d7d7d7"}]},{"featureType":"poi","elementType":"geometry.fill","stylers":[{"visibility":"on"},{"color":"#ebebeb"}]},{"featureType":"administrative","elementType":"geometry","stylers":[{"color":"#a7a7a7"}]},{"featureType":"road.arterial","elementType":"geometry.fill","stylers":[{"color":"#ffffff"}]},{"featureType":"road.arterial","elementType":"geometry.fill","stylers":[{"color":"#ffffff"}]},{"featureType":"landscape","elementType":"geometry.fill","stylers":[{"visibility":"on"},{"color":"#efefef"}]},{"featureType":"road","elementType":"labels.text.fill","stylers":[{"color":"#696969"}]},{"featureType":"administrative","elementType":"labels.text.fill","stylers":[{"visibility":"on"},{"color":"#737373"}]},{"featureType":"poi","elementType":"labels.icon","stylers":[{"visibility":"off"}]},{"featureType":"poi","elementType":"labels","stylers":[{"visibility":"off"}]},{"featureType":"road.arterial","elementType":"geometry.stroke","stylers":[{"color":"#d6d6d6"}]},{"featureType":"road","elementType":"labels.icon","stylers":[{"visibility":"off"}]},{},{"featureType":"poi","elementType":"geometry.fill","stylers":[{"color":"#dadada"}]}]

Maak een afspraak voor een bezichtiging

Vul het onderstaande formulier in en we nemen zo snel mogelijk contact met u op.

Uw bericht is naar ons verzonden. Wij nemen zo snel mogelijk contact met u op.

Er is iets mis gegaan met het versturen van het formulier.
Controleer of u alle velden (goed) heeft ingevoerd en probeer het nog een keer.

Wilt u een bezichtiging plannen?

recaptcha
reCAPTCHA
PrivacyTerms

Vergelijkbare woningen

Verkocht
Ferdinand Huycklaan 22 a 3743 AM Baarn 264m²   4 slaapkamers € 1.850.000 k.k.
Verkocht
Hertog Hendriklaan 4 3743 DL Baarn 261m²   7 slaapkamers € 1.450.000 k.k.
Verkocht
Viottalaan 1 3741 HK Baarn 222m²   6 slaapkamers € 1.450.000 k.k.