Rigter NVM Makelaars gebruikt cookies om de website naar behoren te laten werken, om functies voor social media te bieden en om onze website te analyseren. Op onze website kun je ons Cookieverklaring en Privacybeleid vinden.

Stationsweg 55, Baarn

Omschrijving

Centraal gelegen, op loopafstand van het gezellige dorpscentrum van Baarn, het NS-station, scholen en overige voorzieningen, ligt deze verrassend ruime helft van een dubbele villa. De Pekingtuin bevindt zich op korte afstand en vormt als het ware een verlengstuk van de tuin. De woning kenmerkt zich door een fraaie bouwstijl, degelijke bouwkwaliteit en een opvallend ruime opzet, zowel binnen als buiten.

De woning is mooi licht, beschikt over royale kamers en is extra breed opgezet. De diepe, groene en vrije achtertuin ligt op het zuiden en biedt veel privacy. Op eigen terrein is er parkeergelegenheid voor meerdere auto’s en er is een grote vrijstaande stenen garage aanwezig.

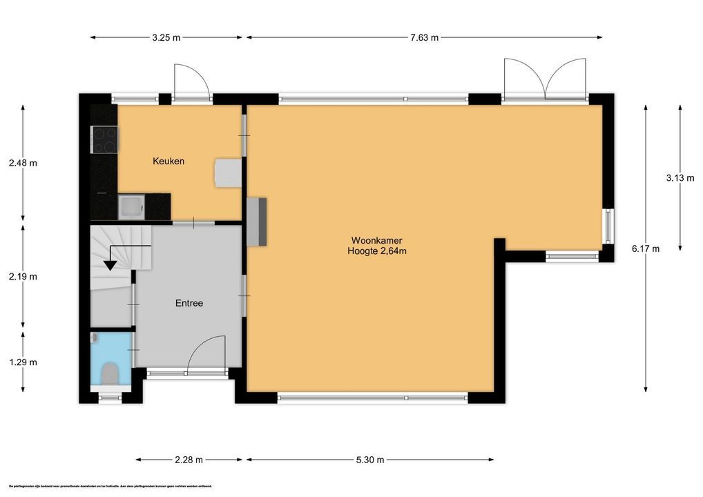
I N D E L I N G
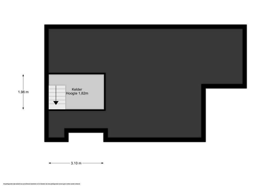
Ruime entreehal, toilet met fonteintje, trapopgang naar de verdieping en trap naar de kelder. Brede en lichte woonkamer met open haard en een woonoppervlakte van ruim 37 m². In de uitbouw bevindt zich de eethoek met openslaande deuren naar de zonnige achtertuin. Keuken voorzien van diverse inbouwapparatuur en een deur naar de tuin.

1 E V E R D I E P I N G
Ruime overloop, grote slaapkamer aan de voorzijde met twee inbouwkasten. Fijne badkamer met ligbad/douche, dubbele wastafel en 2e toilet. 2e ruime slaapkamer aan de achterzijde met vaste kastenwand en inbouwkast. 3e slaapkamer, eveneens aan de achterzijde, met inbouwkast.

Z O L D E R V E R D I E P I N G
Ruime voorzolder met cv-opstelling. 4e en 5e slaapkamer, beide voorzien van dakkapel.

K E N M E R K E N
- bouwjaar 1958
- woonoppervlakte 138 m²
- perceeloppervlakte 550 m²
- energielabel D
- helft van dubbele villa
- aanbouw gerealiseerd in 2002
- zonnige, diepe achtertuin op het zuiden
- vrijstaande stenen garage van 24 m²
- oprit met parkeergelegenheid voor meerdere auto’s
- Intergas combiketel (2022)
- meterkast vernieuwd in 2017

Een ruime en karaktervolle gezinswoning op een uitstekende locatie, met veel leefruimte, een grote tuin en alle voorzieningen binnen handbereik.

Kenmerken

Kenmerken

Prijs
€ 895.000 k.k.
Status
Beschikbaar
Oplevering
In overleg

Bouw

Soort woonhuis
Villa, 2-onder-1-kapwoning
Soort bouw
Bestaande bouw
Bouwjaar
1958
Onderhoud binnen
Goed
Onderhoud buiten
Goed

Oppervlakten en inhoud

Woonoppervlakte
138m²
Perceeloppervlakte
550m²
Overig oppervlakte
6m²
Inhoud
497m³

Indeling

Aantal kamers
6
Aantal slaapkamers
5
Aantal badkamers
1
Aantal verdiepingen
4

Energie

Energielabel
D
Isolatie
Dakisolatie, Vloerisolatie
Warm water
C.V.-ketel
Verwarming
C.V.-ketel
Ketel
Intergas XTREME 36 (2022, Combi-ketel, Eigendom)

Buitenruimte

Ligging
In bosrijke omgeving, In centrum
Tuin
Achtertuin, Voortuin, Zijtuin
Achtertuin
Zuid, 320m², 1600×2000cm

Garage

Soort garage
Vrijstaand steen
Capaciteit
1

Plattegronden

Locatie

[ { "address": "Stationsweg 55", "zipCode": "3743 EM", "city": "Baarn", "lat": 52.2094829, "lng": 5.2886208, "heading": 0, "pitch": 0 } ]
[{"featureType":"water","elementType":"geometry.fill","stylers":[{"color":"#d3d3d3"}]},{"featureType":"transit","stylers":[{"color":"#808080"},{"visibility":"off"}]},{"featureType":"road.highway","elementType":"geometry.stroke","stylers":[{"visibility":"on"},{"color":"#b3b3b3"}]},{"featureType":"road.highway","elementType":"geometry.fill","stylers":[{"color":"#ffffff"}]},{"featureType":"road.local","elementType":"geometry.fill","stylers":[{"visibility":"on"},{"color":"#ffffff"},{"weight":1.8}]},{"featureType":"road.local","elementType":"geometry.stroke","stylers":[{"color":"#d7d7d7"}]},{"featureType":"poi","elementType":"geometry.fill","stylers":[{"visibility":"on"},{"color":"#ebebeb"}]},{"featureType":"administrative","elementType":"geometry","stylers":[{"color":"#a7a7a7"}]},{"featureType":"road.arterial","elementType":"geometry.fill","stylers":[{"color":"#ffffff"}]},{"featureType":"road.arterial","elementType":"geometry.fill","stylers":[{"color":"#ffffff"}]},{"featureType":"landscape","elementType":"geometry.fill","stylers":[{"visibility":"on"},{"color":"#efefef"}]},{"featureType":"road","elementType":"labels.text.fill","stylers":[{"color":"#696969"}]},{"featureType":"administrative","elementType":"labels.text.fill","stylers":[{"visibility":"on"},{"color":"#737373"}]},{"featureType":"poi","elementType":"labels.icon","stylers":[{"visibility":"off"}]},{"featureType":"poi","elementType":"labels","stylers":[{"visibility":"off"}]},{"featureType":"road.arterial","elementType":"geometry.stroke","stylers":[{"color":"#d6d6d6"}]},{"featureType":"road","elementType":"labels.icon","stylers":[{"visibility":"off"}]},{},{"featureType":"poi","elementType":"geometry.fill","stylers":[{"color":"#dadada"}]}]

Maak een afspraak voor een bezichtiging

Vul het onderstaande formulier in en we nemen zo snel mogelijk contact met u op.

Uw bericht is naar ons verzonden. Wij nemen zo snel mogelijk contact met u op.

Er is iets mis gegaan met het versturen van het formulier.
Controleer of u alle velden (goed) heeft ingevoerd en probeer het nog een keer.

Wilt u een bezichtiging plannen?

recaptcha
reCAPTCHA
PrivacyTerms

Vergelijkbare woningen

Verkocht
da Costalaan 2 3743 HV Baarn 156m²   4 slaapkamers € 915.000 k.k.
Verkocht
Torenlaan 27 3742 CR Baarn 159m²   5 slaapkamers € 945.000 k.k.
Verkocht
Nachtegaallaan 14 3741 WV Baarn 101m²   2 slaapkamers € 745.000 k.k.